Le besoin
Obtenir des plans fiables et complets pour preparer des travaux en milieu medical sans perturber l activite, et fournir une base solide aux etudes (dont audit energetique).

Medical / soins
Releve 3D complet interieur/exterieur en site occupe et production de plans 2D normalises (plans, coupes, elevations) pour doter l UGECAM d une base fiable, en appui d un projet d amelioration des chambres et d un audit energetique realise par IGECTEC.
Histoire projet
Le besoin
Obtenir des plans fiables et complets pour preparer des travaux en milieu medical sans perturber l activite, et fournir une base solide aux etudes (dont audit energetique).
Notre reponse
Scan 3D exhaustif interieur/exterieur en site occupe, puis production de plans 2D normalises et structures (niveaux, coupes, elevations) avec reperage des pieces, menuiseries, plafonds et poutres, et cotations 3D.
Le resultat
Un referentiel etat existant clair, exploitable par la MOA/MOE et les bureaux d etudes, securisant la programmation des travaux et la preparation des interventions.
Le groupe UGECAM, gestionnaire du batiment, souhaitait disposer d une base de plans complete et a jour pour preparer des travaux d amelioration du confort et des equipements des chambres de patients, ainsi que pour alimenter un audit energetique mene par IGECTEC. ACBIM est intervenu en site occupe, avec respect strict du protocole sanitaire et d un planning compatible avec l activite de soins et de readaptation. La mission a consiste a scanner l ensemble du batiment (interieur/exterieur) puis a produire un jeu de plans 2D hierarchises (PDF + DWG), incluant mise a jour des reperages, cotations et elements architecturaux structurants.
Extraits visuels du process et des livrables

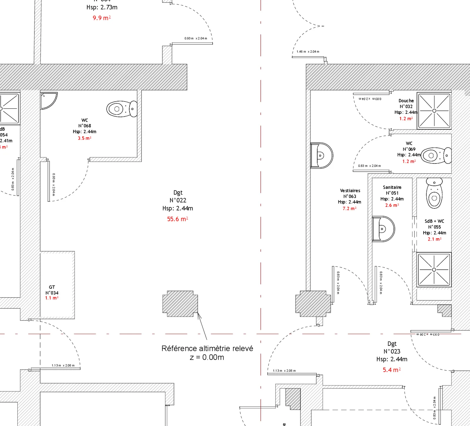
Fragment du plan, pour garder la confidentialite.

Vue d elevation 1

Vue d elevation 2

Vue d elevation 3

Vue d elevation 4

Vue d elevation 5
Projets avec les mêmes tags techniques.
Briques de service mobilisees sur ce projet.
Relevé scanner 3D, numérisation
Capture millimétrique de l’existant (intérieur/extérieur) par scanner laser 3D pour créer un nuage de points fiable. Une base précise pour tous vos projets de rénovation, de diagnostic ou de gestion patrimoniale.
Dessin 2D, plans, coupes, élévations et plans topographiques
Production de plans 2D (plans, coupes, façades) et de plans topographiques géoréférencés pour la conception, la réhabilitation et l'exécution. Des livrables clairs, normés et directement exploitables par architectes, géomètres, maîtres d'œuvre, entreprises et maîtrise d'ouvrage.
Projet similaire ?
Dites-nous simplement la surface, la ville et l objectif du projet. Nous revenons vers vous avec une premiere orientation de mission et les services adaptes.
Nous utilisons Google Analytics pour mesurer l audience du site. Acceptez-vous les cookies de mesure?